RE/MAX Crystal

Michel
SalomonCourtier immobilier

Demande de renseignements
Appeler
Courtier immobilier
Michel Salomon-Beaudin
Courtier immobilier
RE/MAX Crystal

Maison à étages à vendre, Blainville

MLS 23294810
Adresse
67, Rue des Pistoles, Blainville
Description
Pièces : 16 | Chambres : 5 | Salle de bain : 3 | Salle d'eau : 0
Impressionnante demeure nichée dans le secteur prisé de Blainville, offrant une luminosité abondante, un entretien irréprochable et de nombreuses bonifications récentes. Érigée sur un terrain de 10 362 pc sans voisin à l'arrière, elle propose une superbe cour intime bordée de haies avec véranda, grande terrasse, piscine creusée et chauffée, spa et sauna. L'intérieur séduit avec ses 5 chambres, dont une suite principale avec walk-in, 3 salles de bains complètes, un salon chaleureux avec foyer au bois, un vaste sous-sol polyvalent et un garage double chauffé. Emplacement de choix, parfait pour une vie familiale de qualité. Une visite s'impose!
Demande de renseignements
Nom: *
Prénom: *
Téléphone: *
Courriel: *
Sujet:
Message:

Cliquez ici pour obtenir une évaluation
de la valeur marchande de votre propriété!

Évaluation gratuite

Caractéristiques

Genre de propriété Maison à étages Année de construction 2000  
Type de bâtiment Détaché (Isolé)  Possibilité d'échange
Dimensions du bâtiment 50.00 pi. x 33.50 pi. - Irr Certificat de localisation
Superficie habitable      
Dimensions du terrain 65.60 pi. x 133.90 pi. - Irr Prise de possession 90 jours
Zonage Résidentiel
Système d'égouts Municipal Piscine Creusée, Chauffée
Approvisionnement en eau Municipalité Stationnement Au garage (2) , Extérieur (2)
Fondation Béton coulé Allée Asphalte
Revêtement de la toiture Bardeaux d'asphalte Garage Double largeur ou plus, Chauffé, Attaché
Revêtement Brique Terrain Paysager, Terrain/cour bordé de haies
Fenestration PVC Topographie
Type de fenestration Manivelle, Coulissante Particularités du site Aucun voisin à l'arrière
Énergie/Chauffage Électricité Vue
Sous-sol Totalement aménagé, 6 pieds et plus Proximité Transport en commun, Ski de fond, École secondaire, École primaire, Piste cyclable, Parc-espace vert, Golf, Garderie/CPE, Cegep, Autoroute/Voie rapide  
Salle de bains Douche indépendante, Baignoire à remous, Attenante à la chambre principale  
Foyers-poêles Foyer au gaz Équipement disponible Sauna, Climatiseur central, Spa
Mode de chauffage Air soufflé
Dimensions
Largeur du bâtiment
50.00 pi.
Profondeur du bâtiment
33.50 pi.
Façade du terrain
65.60 pi.
Profondeur du terrain
133.90 pi.
Superficie du terrain (p.c.)
10 362.00 pi. ca.
Frais et taxes
Taxes scolaires :
464$ (2026)
Taxes municipales :
3 902$ (2026)
Total
4 366$
Évaluation municipale
Année
2025
Terrain
322 000$
Bâtiment
433 500$
Total
755 500$

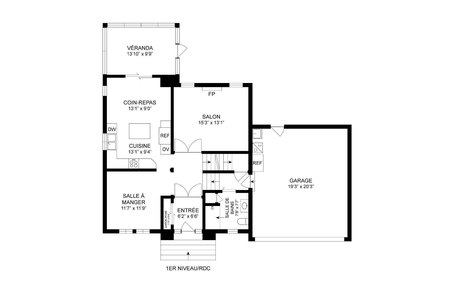
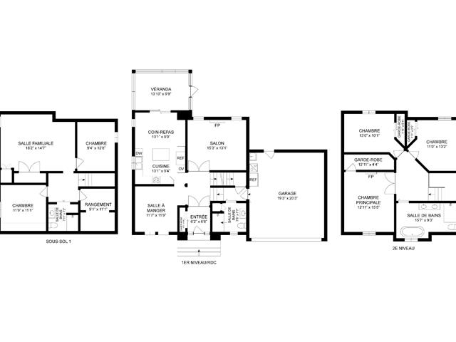
Particularités des pièces

Pièces : 16    |   Chambres : 5    |   Salle de bain : 3   |    Salle d'eau : 0
Pièces NIVEAU DIMENSIONS REVÊTEMENT DE SOL Informations additionnelles
Chambre à coucher principale 2ième étage  12.11x15.5 pi.   - Irr Bois  WALK IN
Chambre à coucher 2ième étage  13.0x10.1 pi.   - Irr Bois 
Chambre à coucher 2ième étage  11.0x13.2 pi.   - Irr Bois 
Salle de bains 2ième étage  15.7x9.3 pi.   - Irr Céramique 
Hall d'entrée Rez-de-chaussée  6.2x6.6 pi.   - Irr Céramique 
Salon Rez-de-chaussée  15.3x13.1 pi.   - Irr Bois 
Salle à manger Rez-de-chaussée  11.7x11.9 pi.   - Irr Bois 
Cuisine Rez-de-chaussée  13.1x9.4 pi.   - Irr Céramique 
Coin repas Rez-de-chaussée  13.1x9.0 pi.   - Irr Céramique 
Salle de bains Rez-de-chaussée  7.6x7.7 pi.   - Irr Céramique 
Véranda Rez-de-chaussée  13.10x9.9 pi.   Bois 
Chambre à coucher Sous-sol  11.9x11.1 pi.   - Irr Plancher flottant 
Chambre à coucher Sous-sol  9.4x12.8 pi.   - Irr Plancher flottant 
Salle familiale Sous-sol  18.2x14.7 pi.   - Irr Plancher flottant 
Salle de bains Sous-sol  7.11x7.2 pi.   - Irr Céramique 
Rangement Sous-sol  9.1x11.1 pi.   - Irr Béton 

Inclusions

Stores, rideaux, fixtures, four encastré, spa, lave-vaisselle, micro-ondes, réfrigérateur, laveuse et sécheuse du garage, piscine et accessoires, foyer au bois, foyer électrique de la cuisine, sauna, chauffe eau de piscine et fontaine.

Exclusions

Cabanon de plastique.

Addenda

Impressionnante demeure nichée dans le secteur prisé de

Blainville, où

luminosité abondante, entretien irréprochable et

bonifications majeures

s'unissent pour offrir un cadre de vie exceptionnel. Dès

l'arrivée, le soin

apporté à la propriété se fait sentir, autant à l'intérieur

qu'à l'extérieur.

Rez-de-chaussée :

Le vestibule d'entrée propose un espace de rangement

pratique et la porte

d'entrée sera remplacée avant l'acte notarié. La salle à

manger invitante

mène vers une grande cuisine fonctionnelle, dont la

céramique a été

remplacée, offrant un espace à la fois moderne et

convivial. Le coin repas

avec foyer au gaz ajoute une touche chaleureuse, tandis que

le salon avec

foyer au bois crée une ambiance réconfortante. Une salle de

bains avec

douche vitrée complète l'étage, en plus d'un garage double

chauffé.

À l'étage :

On y retrouve 3 chambres, dont une suite principale

spacieuse avec walk-in,

ainsi qu'une somptueuse salle de bains offrant une douche

vitrée, une

magnifique baignoire à remous, un double lavabo et un foyer

électrique,

pour une expérience digne d'un spa à domicile.

Sous-sol :

Le sous-sol propose une vaste salle familiale polyvalente,

2 chambres

supplémentaires, une salle de bains avec douche vitrée et

une pièce de

rangement pratique.

Terrain et extérieur :

Érigée sur un terrain de 10 362 pc sans voisin à l'arrière,

cette propriété se

distingue par sa sublime cour paysagée et bordée de haies,

offrant une

intimité remarquable. Vous profiterez d'une véranda, d'un

spa, d'un sauna,

d'une grande terrasse en bois et en béton ajoutée en 2025,

ainsi que d'une

piscine creusée et chauffée dont le béton autour a été

refait en 2025. Le

moteur, le chauffe-eau et la fontaine de la piscine ont été

remplacés en 2022.

Le pavé uni à l'avant a été refait en 2025, et la propriété

bénéficie de 2

espaces de stationnement additionnels. Les vendeurs ont

planté 120 arbres

autour de la maison, renforçant encore davantage l'intimité

et le charme du

site.

Commodités et inclusions :

Climatiseur central, four encastré, lave-vaisselle,

micro-ondes, réfrigérateur,

laveuse et sécheuse du garage, accessoires de piscine,

stores, rideaux et

fixtures sont inclus.

Améliorations majeures :

Toiture refaite en 2020, les 3 salles de bains entièrement

rénovées en 2024

avec carrelage de céramique étanche à séchage instantané,

remplacement de tous les encastrés en 2024, ajout de

disjoncteurs au panneau électrique en 2024, soffites

repeints en 2025, remplacement de tous les thermos et

peinture extérieure des fenêtres en 2025.

Proximité :

Emplacement stratégique près des autoroutes, Cégep, écoles

primaires et

secondaires, garderies/CPE, golf, parcs, pistes cyclables,

ski de fond, train de banlieue et transport en commun.

Une propriété clé en main où chaque détail a été

soigneusement pensé --

laissez-vous charmer et planifiez votre visite sans tarder!

Calculateurs

Paiement mensuel

Prix de la propriété :
Taux d'intérêt :
Amortissement:
Mise de fonds:
Montant de l'hypothèque:

Taxe de mutation

Prix de la propriété:

Pouvoir d'achat

Le montant du versement
Vous devez indiquer le montant du versement.
La fréquence des versements
Taux d'intérêt
Votre période d'amortissement
Votre mise de fonds